LAAJALAHTI

LAAJALAHTI

LAAJALAHTI

Overview

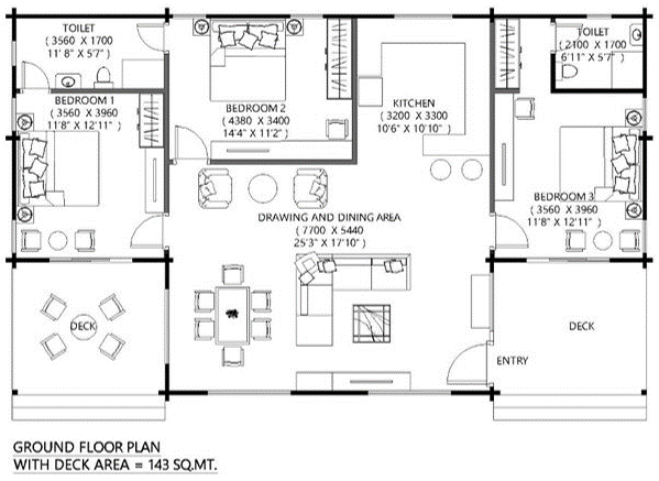
Floor Plan

Social Media

Related Models

/ Beds

4

/ Baths

4

/ Total Area

150 m2

/ Beds

3

/ Baths

4

/ Total Area

1184 SQ. FT

/ Beds

2

/ Baths

2

/ Total Area

1228 SQ. FT

CONTACT INFORMATION